HBR系列_丝杆导轨_产品中心_广州市昊志机电股份有限公司-电主轴行业领导者!
欢迎咨询 售后服务热线:400 6189 083
关注昊志机电官方微信

PRODUCT

产品中心

免费咨询

产品系列:丝杆导轨

型号:HBR系列

超高刚性:

1、 采用滚柱作为滚动体,由点接触改为线接触,滚柱长度为直径的1.5倍以上,实现超高刚性;

2、4列滚珠排列结构,具备良好平衡性,在施加预压情况下,能够有效提升4个方向的动静载刚性。

高平稳低噪音:

1、使用滚柱保持器,保证滚柱均匀排列的同时,减少滚柱循环时发生相互碰撞和侧倾,极大提高滑块运行的噪音水平和运行平稳性。


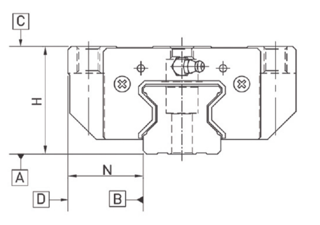
技术参数
序号 项目 标准值

image.png

image.png

返回列表

在线订购

在线订购

请留下您的产品需求详情,以便我们及时、准确的回复您!

*称    呼

*手    机

*地    域

*公    司

需求详情

提交

免费咨询

请留下您的产品需求详情,以便我们及时、准确的回复您!

*称    呼

*手    机

*地    域

*公    司

需求详情

提交